Property ID : 922251208
For Sale ₪6,890,000 - Mini Penthouse
A rare opportunity for a magnificent mini-penthouse in the Old North – Ben Saruq
Looking for a high-quality lifestyle in one of the most desirable streets in the city?
This is a property that rarely comes onto the market.
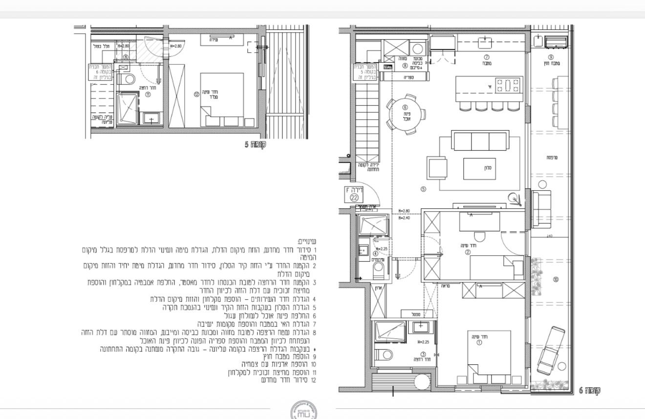
A bright, spacious, and well-designed mini-penthouse
105 sqm built
25 sqm sun terrace, perfect for hosting
Private parking
Private storage room
Occupancy in 5 months
Price: 6,890,000 ₪
A winning combination of location, comfort, and quality of life — an apartment not to be missed.








